Elämyksellinen kokonaistaideteos, innoittavan ihmisläheinen.

Alvar Aallon ”Sokeripala” Kanavarannassa on kulttuurihistoriallinen toimitilakiinteistö, jossa arkkitehdin kädenjälki näkyy niin vaikuttavassa marmorijulkisivussa kuin ajattomissa sisustusratkaisuissa. Täällä työyhteisönne punoutuu osaksi talon kiehtovaa tarinaa, ja viehättyy merellisen Helsingin siluetista kaikkina vuodenaikoina.

Napsauta alla olevaa tasoa nähdäksesi sen vapaat tilat.

6st Floor Plan 5st Floor Plan 4st Floor Plan 3st Floor Plan 2st Floor Plan 1st Floor Plan
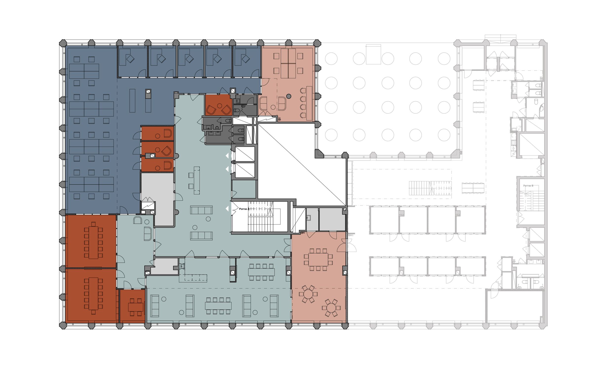
Toimisto ja showroom 1. kerros 499 m² + 443 m² Vapaana

Toimisto 499 m²
Huoneistoala

  • 6 Neuvottelutilat
  • 31 Työtilat
  • Tauko- ja aulatilat
  • WC-tilat
  • Varastot

Showroom 443 m²
Huoneistoala

  • Showroom
  • 1 Neuvottelutilat
  • 4 Työtilat
  • Tauko- ja aulatilat
  • WC-tilat
  • Varastot
Lataa
Toimisto ja showroom 1. kerros 260 m² + 711 m² Vapaana

Toimisto 260 m²
Huoneistoala

  • 4 Neuvottelutilat
  • 15 Työtilat
  • Tauko- ja aulatilat
  • WC-tilat
  • Varastot

Showroom 711,5 m²
Huoneistoala

  • Showroom
  • 2 Neuvottelutilat
  • 3 Työtilat
  • Tauko- ja aulatilat
  • WC-tilat
  • Varastot
Lataa
Toimisto 1. kerros 971,5 m² Vapaana

Tapahtumakeskus 971,5 m²

Huoneistoala

  • Tapahtuma- ja joogasalit
  • 4 Neuvottelutilat
  • Vastaanottotilat
  • Asiakastilat ja käytävät
  • WC-tilat
  • Varastot
Lataa
Toimisto ja showroom 1.-2. kerros 1710,5 m² Vapaana

Toimisto ja kokouskeskus 1710,5 m²
Huoneistoala

1. kerros 959 m²

  • 34 Työtilat
  • 9 Neuvottelutilat
  • Auditorio
  • Tauko- ja aulatilat
  • WC-tilat
  • Varastot

2. kerros 751,5 m²

  • 61 Työtilat
  • 5 Neuvottelutilat
  • Jaettava projektitila
  • Tauko- ja aulatilat
  • WC-tilat
  • Varastot
Lataa
Toimisto 2. kerros 751,5 m² Vapaana

Toimisto 499 m²
Huoneistoala

  • 7 Neuvottelutilat
  • 27 Työtilat
  • Projekti- ja hiljaisen työskentelyn tila
  • Tauko- ja aulatilat
  • WC-tilat
  • Varastot
Lataa
Restaurant 6th Floor 633m2 Available

Net surface area 633 m2
Example layout

Download

1. krs

Aula ja toimistotilaa

Ensimmäisen kerroksen sisäänkäynti hurmaa näyttävillä yksityiskohdillaan – uniikkikalusteilla, marmorireliefillä ja alkuperäisillä Aalto-sisustusratkaisuilla.

Kerroksen vapaat toimitilat tarjoavat monia mahdollisuuksia. Tilakokonaisuus sisältää runsaasti avointa ja modernia toimistotilaa muuntuen joustavasti yritysten erilaisiin tarpeisiin.

Lataa pohjakuva

2. krs

Muuntojoustavaa toimistotilaa

Toisen kerroksen tilat taipuvat monenlaisiin toimistoratkaisuihin tukemaan vuokralaisen yksilöllisiä tarpeita ja yrityskulttuuria. Myös sisustusta voidaan uudistaa uuden käyttäjän toiveita kuunnellen, Aallon henkeä kunnioittaen. 

Kerroksen sydämestä löytyy portaikko, joka mahdollistaa helpot siirtymät kerrosten välillä. Sykähdyttävän kokonaisuuden täydentävät upeat näkymät merelle, kaupunkiin ja Uspenskin katedraalille.

Lataa pohjakuva

3., 4. ja 5. krs

Tyylikästä toimisto-, edustus- ja neuvottelutilaa

Kolmannen, neljännen ja viidennen kerrokset tilat on tyylikkäästi uudistettu tämän päivän toimistotyön tarpeisiin sekä tukemaan henkilöstön viihtyvyyttä. Tilat ovat tällä hetkellä kokonaisuudessaan vuokrattuina.

 

Tutustu asiakastarinoihimme:
Ilmatar
Asianajotoimisto DLA Piper

6. krs

Kattoterassi

Kanavaranta 1:n huipulta löytyy kattoterassi, josta avautuvat vaikuttavat näkymät merelle ja ympäri Eteläsatamaa.

Huikeita meri- ja kaupunkinäkymiä tarjoava kattoterassi mahdollistaa virvoittavat tauot meri-ilmassa. Sokeripalan kattoa asuttaa kesäisin myös oma mehiläisyhdyskunta, joka huolehtii lähiympäristön pölytystyöstä ja tuottaa talon omaa nimikkohunajaa.

 

Kellarikerros

Käytännöllistä pysäköinti- ja sosiaalitilaa

Kiinteistön kellarikerroksesta löytyy suojaisat pysäköintitilat sekä autoilijoille että työmatkapyöräilijöille. Pysäköintitiloissa on huomioitu myös sähköautoilijoiden ja -pyöräilijöiden tarpeet omilla latauspisteillään, ja polkupyörille on järjestetty pesu- ja huoltopaikka.

Työmatkaliikkujien iloksi kerroksesta löytyy myös hyvin varustellut suihku- ja pukeutumistilat.